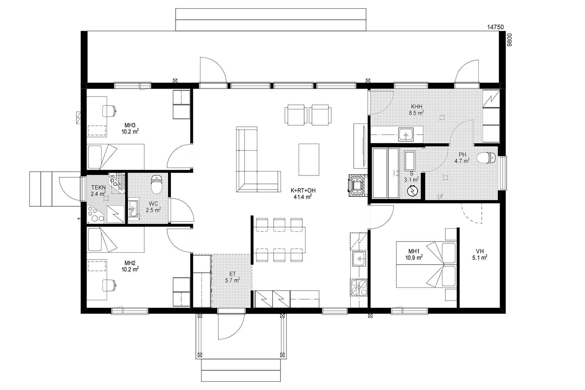
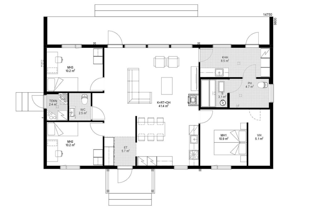
Lõputud kohandamisvõimalused
Iga kodu meie kohandatavas palkmajakollektsioonis pakub erinevaid eelnevalt planeeritud lahendusi, mida saate oma maitse järgi veelgi kohandada. Kas teile meeldib maja välimus, kuid soovite magamistubade paigutuse ümber korraldada? Kas planeering on hea, aga suurem terrass oleks tore? Meie kohandatava kollektsiooniga saate neid kõiki ja palju muud vaevata kohandada.


